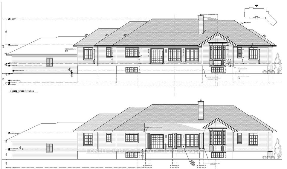
Rare build-ready opportunity in the Town of Caledon.Set on a picturesque 12+ acre parcel, Lot 22 Hurontario is offered as vacant land with the foundation and basement already completed and approved architectural plans for an impressive 3,234 sq. ft. custom bungalow. The property offers exceptional privacy and tranquility, making it an ideal setting for a refined country estate.The approved plans envision a thoughtfully designed luxury residence featuring three bedrooms and four bathrooms, expansive principal rooms, and a generous family living area ideal for both everyday comfort and entertaining. A separate chef's kitchen has been incorporated to provide additional prep and cooking space. Design highlights include soaring ceilings, a large covered rear porch, and premium finishes throughout.Extensive planning, design, and approval work has already been completed, providing a streamlined path to construction with the opportunity for buyer review and customization.Property is being sold as vacant land with approved plans. Buyers are responsible for completing their own due diligence with respect to zoning, permits, development charges, construction requirements, and intended use. Images are architectural renderings only. No dwelling has been constructed beyond the existing foundation.
| Rooms | Dimmensions | Features |
| m x m | ||
| m x m | ||
| m x m | ||
| m x m | ||
| m x m | ||
| m x m |
HOMELIFE/MIRACLE REALTY LTD
Radius:
Interested in viewing a property? Need more information? Fill out the form below and you will be contacted shortly. Thank you for your interest. Your business is appreciated!
Every property has a history. If you’re interested in knowing all the details, fill out this form to receive a comprehensive report.
The key to placing a competitive offer is an accurate picture of the current real estate market. Enter your contact information to receive a detailed price comparison of this property against other comparable listings and recent sales in the surrounding areas.

Toronto Real Estate Board (TREB); All information deemed reliable but not guaranteed. All properties are subject to prior sale, change or withdrawal. Neither listing broker(s) or information provider(s) shall be responsible for any typographical errors, misinformation, misprints and shall be held totally harmless. Copyright ©2022 All rights reserved.